Renovated Golf Townhouse
JUST-00974PLife at Casa Preciosa is defined by sunshine, greenery, and effortless comfort.
Set within the sought-after, family-friendly community of La Rinconada in Nueva Andalucía, this beautifully renovated four-bedroom townhouse captures the relaxed, refined lifestyle Marbella is known for.
Surrounded by the lush fairways of the Golf Valley and located in a secure Andalusian-style complex, the property offers an ideal balance of privacy, community, and convenience for both permanent living and holidays.
Inside, the home has been renovated from top to bottom using high-quality materials and a smart, modern design.
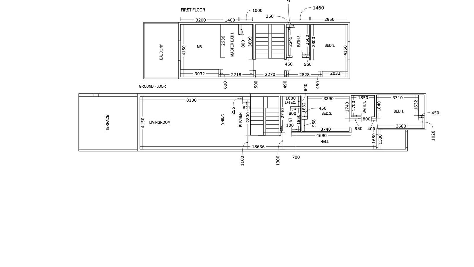
The layout is spread across two bright floors, with interiors filled with natural light throughout the day.
The ground floor centres around an open-plan living space where a sleek contemporary kitchen flows into a welcoming lounge, creating an inviting atmosphere for everyday living and entertaining.
This level also includes two guest bedrooms that share a full bathroom, along with a separate guest toilet and a discreet utility room that adds practical convenience without disrupting the clean design.
From the living area, doors open directly onto a sunny terrace, forming a seamless connection between indoor and outdoor living.
This space is ideal for alfresco dining, morning coffee, or evening drinks, all with calming views across the gardens and communal pool. The terrace also offers direct access to the shared green areas, giving the home a villa-like feel with the ease of a townhouse.
Upstairs, the master bedroom is a private retreat, complete with its own terrace overlooking the gardens, swimming pool, and the mountain scenery of Golf Valley.
A further guest bedroom occupies this floor and features an en-suite bathroom, ensuring comfort and privacy for visiting family and friends. With excellent afternoon and evening sun, the upper level feels warm, bright, and welcoming year-round.
La Rinconada is known for its mature gardens, tall palm trees, and peaceful shared pool area that enhances the sense of calm throughout the community.
Everything you need is within easy walking distance, including popular restaurants, a supermarket, Aloha Tennis & Paddle Club, and Aloha Golf.
The renowned courses of Las Brisas, Magna, and Los Naranjos, as well as Aloha College, are just minutes away, making this home a rare opportunity in one of Marbella’s most desirable neighbourhoods.
- Reference
- JUST-00974P
- Type
- Town House
- Location
- Nueva Andalucia, Marbella
- Beds
- 4
- Baths
- 3
- En suite
- 2
- Build m²
- 290
- Interior m²
- 230
- Terrace m²
- 60
- Pool
- Communal
- Garden
- Communal
- Garage
- Private
- Orientation
- S
Additional Features
- 24h Service
- Air conditioning
- Alarm
- Amenities near
- Central heating
- Close to golf
- Close to restaurants
- Close to schools
- Close to shops
- Close to town
- Covered terrace
- Dining room
- Excellent condition
- Fitted wardrobes
- Fully fitted kitchen
- Fully furnished
- Garden view
- Gated community
- Glass Doors
- Guest room
- Guest toilet
- Individual A/C units
- Laundry room
- Living room
- Marble floors
- Mature gardens
- Mountainside
- Open plan kitchen
- Private terrace
- Saltwater swimming pool
- Security entrance
- Security service 24h
- Security shutters
- Solarium
- Storage room
- Surveillance cameras
- Transport near
- Uncovered terrace
- Underfloor heating (bathrooms)
- Video entrance
Similar Properties
Contemporary four bedroom townhouse located in the gated community of La Rinconada, located in Marbella´s Golf Valley
- 4 beds
- 3 baths
- Interior: 170 m²
Casa Preciosa, a fully refurbished 4-bedroom, spacious townhouse in The Golf Valley of Nueva Andalucia, Marbella
- 4 beds
- 3 baths
- Interior: 170 m²


